Luxe UES 2BR w/ W/D & Elevator, near Bloomingdales, by Blueground | Apartment in Brooklyn

2 Bedroom Apartment in Greenpoint, Brooklyn
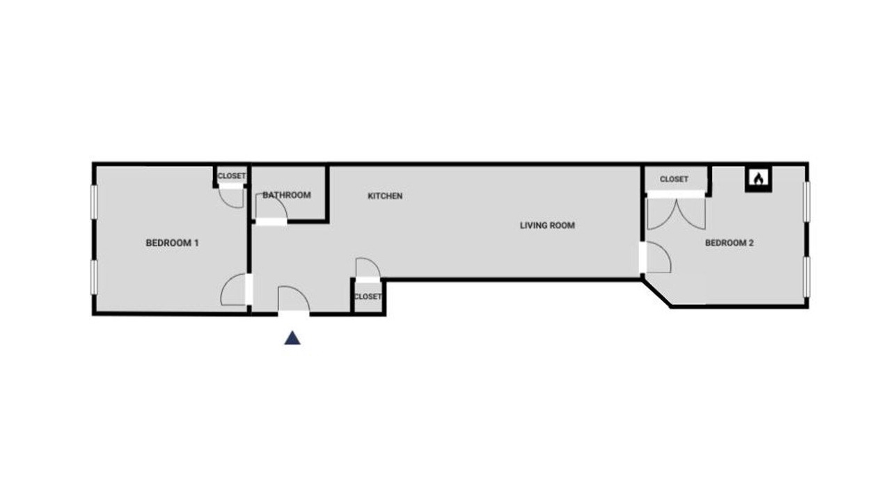
Discover the best of Brooklyn, with this two bedroom apartment in Greenpoint. . It’ll be easy to simply show up and start living in this fashionably Blueground furnished apartment with its fully-equipped kitchen, sophisticated living room, and our dedicated, on-the-ground support. (ID #NYC886)
Designed with you in mind
As with any Blueground apartment, you’ll find a thoughtfully designed space complete with beautiful furniture and a fully-equipped kitchen in this two bedroom property. And, thanks to our superior quality mattresses, luxury linens, and towels, you can relax knowing you’ll always feel comfortably at home. When you’re ready for some fun, you can take in the Brooklyn vibes or bring the entertainment to you with the premium wireless speaker or smart TV. This apartment also offers in-apartment laundry.
Sleeping arrangements
Queen Bed, 63in/160cm
Queen Bed, 63in/160cm
Amenities
Building amenities unique to this two bedroom apartment include an on-site:
- Dryer
- Washing machine
Arrival and ongoing support
The entire apartment is yours to enjoy! You’ll either be personally greeted by a Blueground team member or given self check-in instructions.
Throughout your stay, you’ll have access to our Client Experience team through the Blueground App. You can schedule additional cleanings, submit maintenance requests, and view our neighborhood recommendations with just a few taps.
We’ll share all details upon confirmation of your stay.
Ideally Located
This furnished apartment is located in Greenpoint, a historic Brooklyn neighborhood that is known for its eclectic food scene and quiet, tree-lined blocks. This lovely area is frequently used as a backdrop for TV shows, thanks to its proximity to Long Island City's Silvercup Studios. Greenpoint's food scene is concentrated along Manhattan Avenue, one of the neighborhood's major thoroughfares. You can find everything from world-renowned donuts to vegan comfort food to authentic Polish cuisine, as well as plenty of bars serving craft cocktails. On the weekend, head to Transmitter Park for gorgeous East River views or walk to trendy Williamsburg to check out hip boutiques and art galleries. Greenpoint is served by the G line of the New York City subway system.
Other things to note
This Blueground apartment has flexible lease options, allowing you to book it for one month, a year, or more.
Please keep in mind that this is a walk up building.
We take great pride in ensuring every photo displayed is shot in our own units with our actual furnishings. That said, we regularly refresh our decor and furniture arrangement, which may differ from what’s pictured.
A security deposit of $500 is required at booking, which will be returned within 2-4 weeks after the check-out, minus any deductible damages.
Luxe UES 2BR w/ W/D & Elevator, near Bloomingdales, by Blueground is located in Greenpoint. Luxe UES 2BR w/ W/D & Elevator, near Bloomingdales, by Blueground provides accommodation, featuring Security/Safety, Wellness Facilities, Guest Services, among other amenities. This Apartment features Security/Safety, Wellness Facilities, Guest Services, to make your stay a comfortable one.
Luxe UES 2BR w/ W/D & Elevator, near Bloomingdales, by Blueground has 2 Bedrooms , 1 Bathroom, and max occupancy of 4 people. The minimum rental for this property is 1 nights, but this can change depending on the season you plan on staying. Previous guests have given good rated it, and VRBO labeled it a top-rated Apartment because of the excellent services rendered by the owner or manager of this Apartment, and has consistently provided great experiences for their guests. Most families or guests that use it recommend it to their friends and some of them are repeat guests. Apartment has a friendly neighborhood, and the Greenpoint has interesting places to visit. If you want to learn more about the Apartment in Greenpoint, such as places to visit and things to do nearby, you can check below to learn more.
Amenities
Facility Overview
-
Air conditioning
-
Heating
-
1 bathroom
-
Hair dryer
-
Towels provided
-
2 bedrooms
-
Bed sheets provided
-
Living room
-
Coffee/tea maker
-
Cookware/dishes/utensils
-
Microwave
-
Oven
-
Refrigerator
-
Stovetop
-
Washing machine and dryer
-
No pets allowed
-
Smoke-free property
-
Stereo
-
TV
-
Unit size: 700 sq ft (65 sq m)
-
English
-
Greek
-
Housekeeping (on request)
-
Iron/ironing board
-
WiFi available
-
Carbon monoxide detector not reported (host has not indicated whether there is a carbon monoxide detector on the property; consider bringing a portable detector)
-
Smoke detector not reported (host has not indicated whether there is a smoke detector on the property)
Policies
Extra-person charges may apply and vary depending on property policy government-issued photo identification and a credit card, debit card, or cash deposit may be required at check-in for incidental charges host has not indicated whether there is a carbon monoxide detector on the property; consider bringing a portable detector with you on the trip host has not indicated whether there is a smoke detector on the property onsite parties or group events are strictly prohibited special requests are subject to availability upon check-in and may incur additional charges; special requests cannot be guaranteed this property is managed through our partner, vrbo. you will receive an email from vrbo with a link to a vrbo account, where you can change or cancel your reservation